








Wohnungsbau in der Europacity Berlin
- Adresse Lydia-Rabinowitsch-Straße (Planstraße 2.2) 10557 Berlin, Mitte, Ortsteil Moabit
- Bauherr 6B47 Europacity Baufeld 9 GmbH
- Bauzeitraum 04/2021 - 2024
- Leistungsphasen 5-8
- BGF ca. 6.000 m²
- Gebäudetyp Wohnungsbau
- Art des Projekts Neubau
- Status in Fertigstellung
Aufgabe
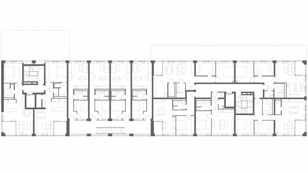
Das Ziel dieses Wohnungsbauprojekts war es, in der zentral gelegenen Europacity, einem der dynamischsten Stadtteile Berlins, 64 hochwertige Eigentumswohnungen zu entwickeln. Die Herausforderung bestand darin, eine attraktive Mischung aus unterschiedlichen Wohnungstypen zu schaffen, die sowohl Singles und Paare als auch Familien ansprechen und gleichzeitig den steigenden Anforderungen an modernes Wohnen gerecht werden.
Ein weiteres Ziel war es, den Bewohnern ein komfortables und funktionales Zuhause zu bieten, das den urbanen Lebensstil mit hochwertigen Annehmlichkeiten und einer angenehmen Wohnatmosphäre verbindet. Auch die Einbeziehung von Außenbereichen wie Loggien, Terrassen, Gärten und Dachterrassen sollte den Wohnungen zusätzlichen Mehrwert bieten.
Idee
Die Grundidee des Projekts war es, moderne Eigentumswohnungen zu schaffen, die sich durch Flexibilität und Funktionalität auszeichnen. Das Gebäude bietet Wohnungen in unterschiedlichen Größen und Layouts, um den Bedürfnissen verschiedener Zielgruppen gerecht zu werden – von kompakten Einheiten bis hin zu großzügigen Wohnungen für Familien. Jede Wohnung ist mit bodentiefen Fenstern ausgestattet, die viel Tageslicht hereinlassen und den Wohnraum öffnen.
Ein zentrales Gestaltungselement sind private Außenbereiche wie Loggien, Terrassen und Gärten, die den Bewohnern zusätzlichen Raum zur Entspannung im Freien bieten. Für einige Wohnungen wurden außerdem Dachterrassen eingeplant, um exklusiven Wohnkomfort zu gewährleisten.
Realisierung
In der Umsetzung wurden die Wohnräume mit hochwertigen Materialien ausgestattet, die sowohl funktional als auch ästhetisch ansprechend sind. Der Einbau eines modernen Aufzugs ermöglicht einen bequemen Zugang zu allen Etagen, während die Tiefgarage ausreichend Stellplätze für die Fahrzeuge der Bewohner bietet.
Das Projekt wurde in einem der besten Stadtteile Berlins realisiert, der Europacity, die mit einer hervorragenden Infrastruktur und Anbindung an den öffentlichen Nahverkehr punktet. Die zentrale Lage bietet den Bewohnern eine hohe Lebensqualität, die durch den Mix aus urbaner Nähe und grünen Rückzugsorten ergänzt wird.
Mit dieser Kombination aus modernen Wohnungen, komfortablen Annehmlichkeiten und einer attraktiven Lage ist das Wohnungsbauprojekt in der Europacity bestens auf die Bedürfnisse der heutigen Stadtbewohner abgestimmt.